設為首頁
加入收藏
站內搜索
今天是:
首頁
關于我們
新聞中心
產品展示
下載中心
博客
新聞分類
技術文章
公司新聞
行業新聞
推薦新聞
·YK-102數字壓力控制儀數字壓力表
·YK-100數顯式壓力表工業數字壓力
·YK-100--不銹鋼精密數顯壓力智能
·振動式音叉密度計原理描述
·音叉密度計自制密度計密度計工作
·校準實驗室計量溯源性要求
·壓力校驗儀傳壓介質的影響
·手操泵的優點有哪些?
·活塞壓力計的測量范圍?
·淺談活塞壓力計的結構原理?
·新規程超高壓活塞式壓力計簡析
·新活塞式壓力計和老式活塞式壓力
·YBS-WY精密數字壓力計
·YS-6T活塞式壓力計
當前位置:
首頁
>
新聞中心
>
技術文章
> 查看新聞
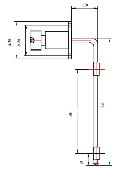
XY-883彎管式密度計尺寸圖
作者:liuyafei 來源:本站 發表時間:4/22/2013 3:50:02 PM 點擊:2849
XY-883彎管式密度計
尺寸圖如下所示
:
咨詢電話:029-88634298
上條新聞:
XY差壓式在線密度計尺寸圖
下條新聞:
在線密度計維護及故障處理須知